AMAM
Architect: do:gma (Georgios Makridis – Lead Architect, Theodora Paschali – Project Architect)/ Mechanical Engineer: K. Karantonis Engineering Consultants Ltd/ Electrical Engineer: K. Karantonis Engineering Consultants Ltd/ Contractor: El Sayed Constructions Ltd/ Joinery: Andros & Savvas/ Photography: Constantina Voskaridou
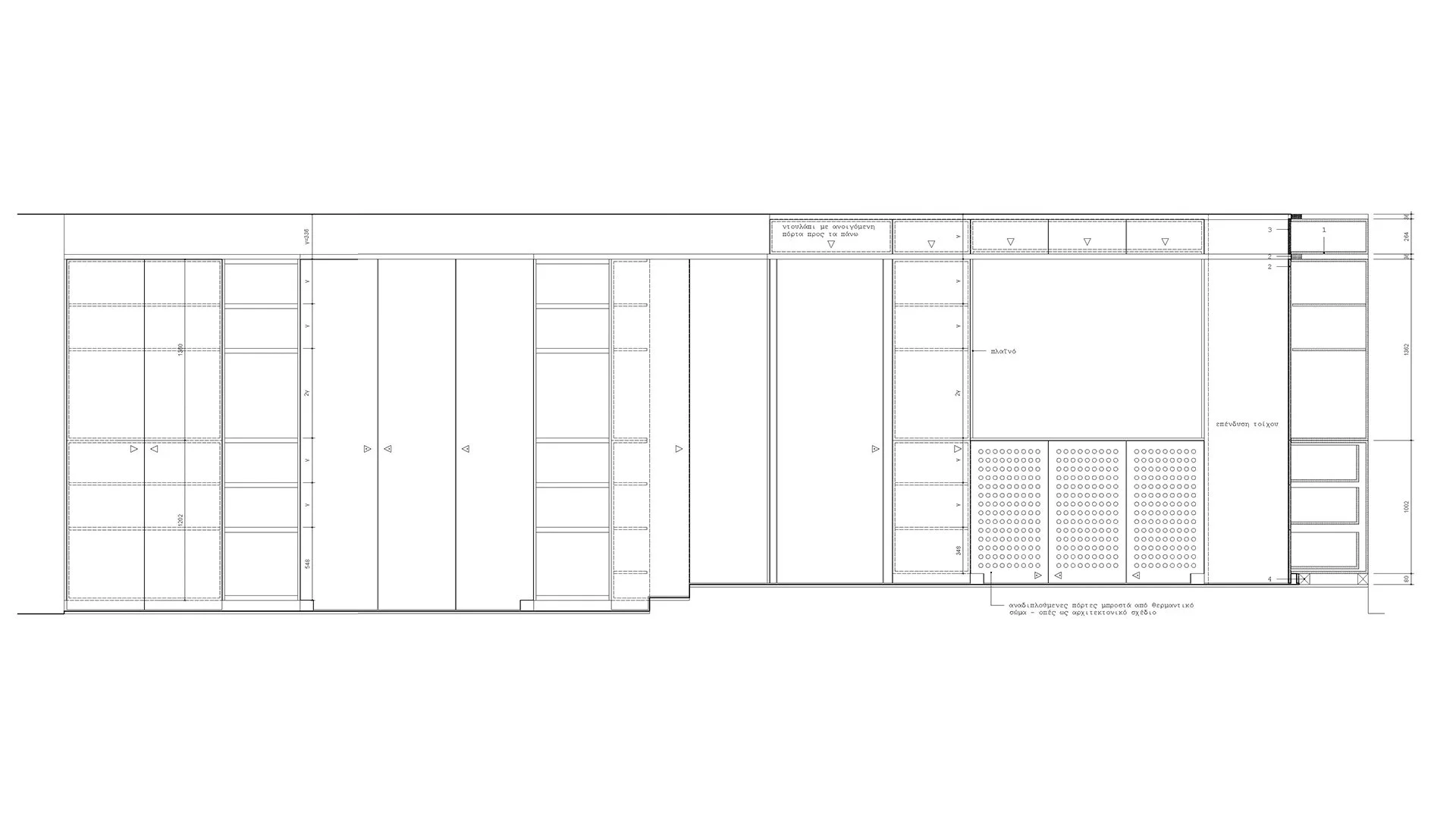
AMAM House is a thoughtful refurbishment of a 1990s home in Aglantzia, Nicosia, that becomes both a subtle enclosing shell and a generous living machine. We saw the “deep wall” as the structuring device — it distinguishes public and private without blocking flow or visual connection.
In practice: the wall houses storage, exhibition niches, circulation, and buffer zones. It threads through living, reading, and kitchen spaces, providing rhythm and material presence. The result feels tactile — you move along a wall as much as through rooms.
The existing 300 m² two-level dwelling was transformed into a nearly zero-energy building, respecting the structure while re-imagining its role. Custom details, client-specific fittings and a disciplined material palette tie the house firmly to its inhabitants: quiet, refined and grounded.
In one sentence: AMAM House is a home of subtle intervention, of layered wall and light, quietly re-tuned for contemporary life.

