TG
Architect: do:gma (Georgios Makridis - Project Architect, Constantina Voskaridou)
Visualisations: Elena Pillakouri
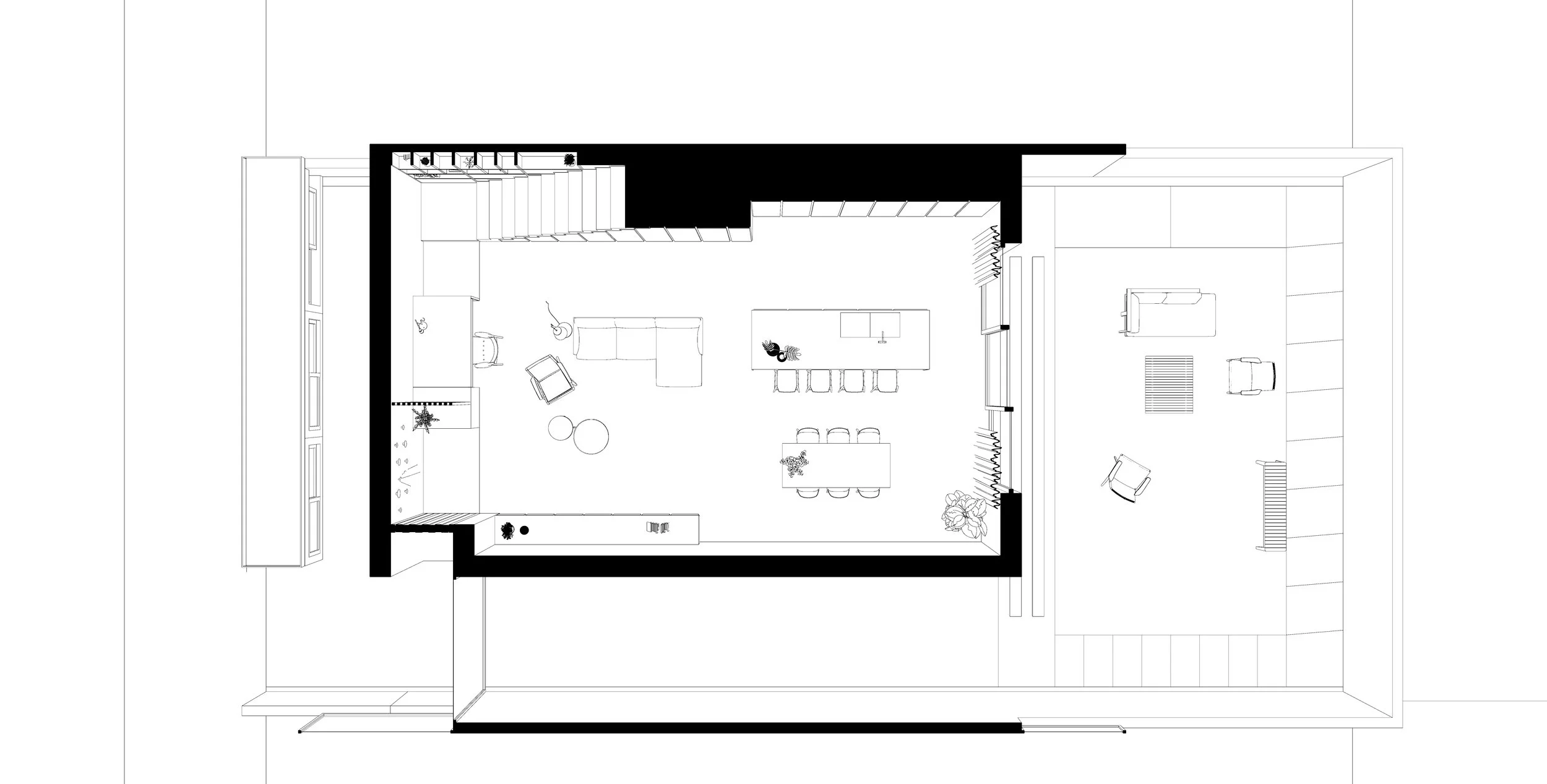
TG House shapes a calm interior life behind a modest street presence. A central garden draws daylight deep into the home, letting rooms stay connected through views of plants, sky, and shifting shade. Spaces flow in sequence — work beside sleep, kitchen beside courtyard — simple adjacencies supporting everyday routines.
Materials remain grounded: terrazzo underfoot, timber for warmth, soft colour to hold the atmosphere. Built-in storage keeps the home ordered without feeling strict. The staircase becomes a bookshelf, a place for objects and pause, not only movement.
This is a home for a couple who enjoy quiet rituals — cooking together, working from home, caring for plants. TG House offers them privacy, clarity, and a steady rhythm of inside and outside — a small sanctuary tuned to the life they choose to live.

