AuG
Architect: do:gma (Georgios Makridis - Project Architect, Constantina Voskaridou)
Visualisations: Elena Pillakouri
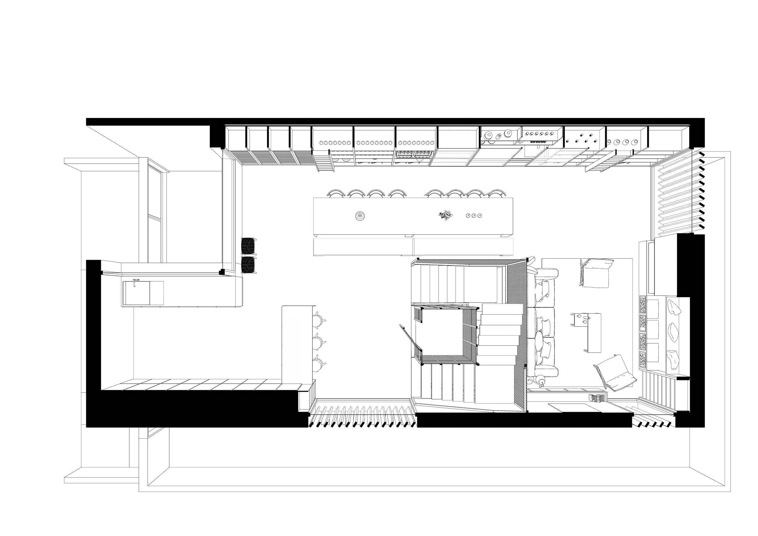
AuG House is a compact vertical home in Mesa Geitonia, shaped around the daily rhythm of its owners — collectors of wine, tea, and art. Rooms stack with intention: living close to the street, rest and retreat above, and a rooftop for open air and conversation. Concrete, timber, and metal give calm structure, while colour and crafted objects bring warmth. Light filters through screens, offering privacy without closing the house off. It is a small footprint with a generous spirit — a place for careful living, shared tasting, and quiet appreciation.

